0
Réf : DNVMA340011433

Immeuble à Saint-Martin-de-Belleville

Saint-Jean-de-Belleville (73440)
670 000 €

A propos de ce bien

Idéal investissuer, restaurateur, professionel du tourisme pour loger votre personnel.

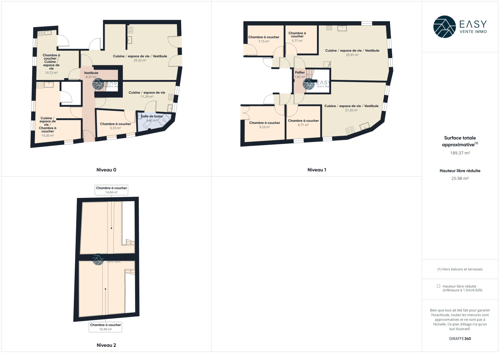
Au coeur de la vallée des Belleville, au lieu dit de la Combe, l'agence Easy Vente Immo vous propose ce bien d'une surface de 165m2 se composant de 6 appartements.

_________________________


Allant du T1 au T3 Bis, cet immeuble se décompose de la façon suivante :

- Au niveau -1, vous trouverez deux caves voutées vous offrant une grande capacité de stockage.

- Au niveau 0, le RDC se compose de deux T1 et de deux T2.

- Au niveau 1, l'étage vous offrira deux appartements plus grands avec deux chambres + mezzanine chacun.

A savoir que chaque appartement dispose de son propre système de production d'eau chaude électrique ainsi qu'un compteur électrique individuel.


Le coût des dépenses énergétiques sont entre 2190 € et 2990€ annuel.

Le montant de la taxe foncière s'élève à 820€

_________________________


Pour plus d'informations et prévoir une visite contactez DUFOUR Nicolas au 06 69 57 07 65 ou par mail à l'adresse n.dufour@easyventeimmo.fr.

Les informations sur les risques auxquels ce bien est exposé sont disponibles sur le site Géorisques : www.georisques.gouv.fr


Vous avez un projet immobilier, EASY VENTE IMMO votre agence locale et dynamique vous fait profiter de son expertise sur son secteur et son réseau de 50 agences locales. Assurez-vous de la meilleure des visibilités avec :

EASY VENTE IMMO

découvrir le bien

Descriptif du bien

TRAD_PAMPERO_Caracteristique Valeurs
Code postal 73440
Surface habitable (m²) 165 m²
Nombre de chambre(s) 6
Nombre de pièces 12
Nombre de niveaux 3
TRAD_PAMPERO_Caracteristique Valeurs
Mode de chauffage Electrique
Type de chauffage Radiateur
Format de chauffage Individuel
Année de construction 2001
TRAD_PAMPERO_Caracteristique Valeurs
Prix de vente honoraires TTC inclus 670 000 €
DPE GES
  • Commerces et santé
  • Loisirs
  • Ecoles
  • Transports
  • Pratique
Ce bien vous intéresse ?
Fieldset par défaut
Fieldset par défaut
Validation

* Champs obligatoires

Contacter l'agence
Validation
Les informations recueillies sur ce formulaire sont enregistrées dans un fichier informatisé par La Boite Immo agissant comme Sous-traitant du traitement pour la gestion de la clientèle/prospects de l'Agence / du Réseau qui reste Responsable du Traitement de vos Données personnelles. La base légale du traitement repose sur l'intérêt légitime de l'Agence / du Réseau. Elles sont conservées jusqu'à demande de suppression et sont destinées à l'Agence / au Réseau. Conformément à la loi « informatique et libertés », vous disposez des droits d’accès, de rectification, d’effacement, d’opposition, de limitation et de portabilité de vos données. Vous pouvez retirer votre consentement à tout moment en contactant directement l’Agence / Le Réseau. Consultez le site https://cnil.fr/fr pour plus d’informations sur vos droits. Si vous estimez, après avoir contacté l'Agence / le Réseau, que vos droits « Informatique et Libertés » ne sont pas respectés, vous pouvez adresser une réclamation à la CNIL. Nous vous informons de l’existence de la liste d'opposition au démarchage téléphonique « Bloctel », sur laquelle vous pouvez vous inscrire ici : https://www.bloctel.gouv.fr Dans le cadre de la protection des Données personnelles, nous vous invitons à ne pas inscrire de Données sensibles dans le champ de saisie libre.
Ce site est protégé par reCAPTCHA, les Politiques de Confidentialité et les Conditions d'Utilisation de Google s'appliquent.