
Albertville (73200)
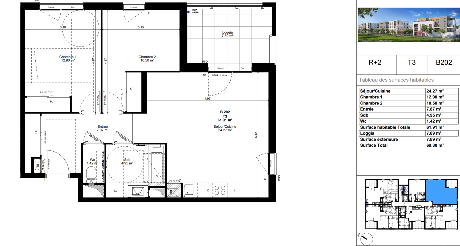
ALBERTVILLE T3 NEUF
63,02 m²
-
279 000 €