
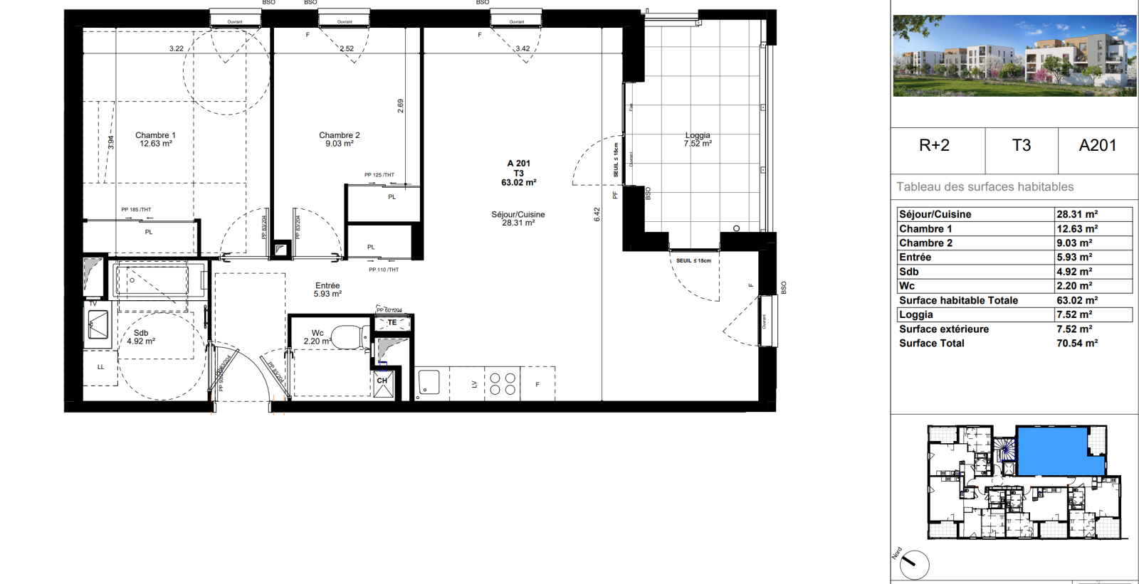
Albertville (73200)
ALBERTVILLE T3 NEUF
62,83 m²
-
281 000 €