
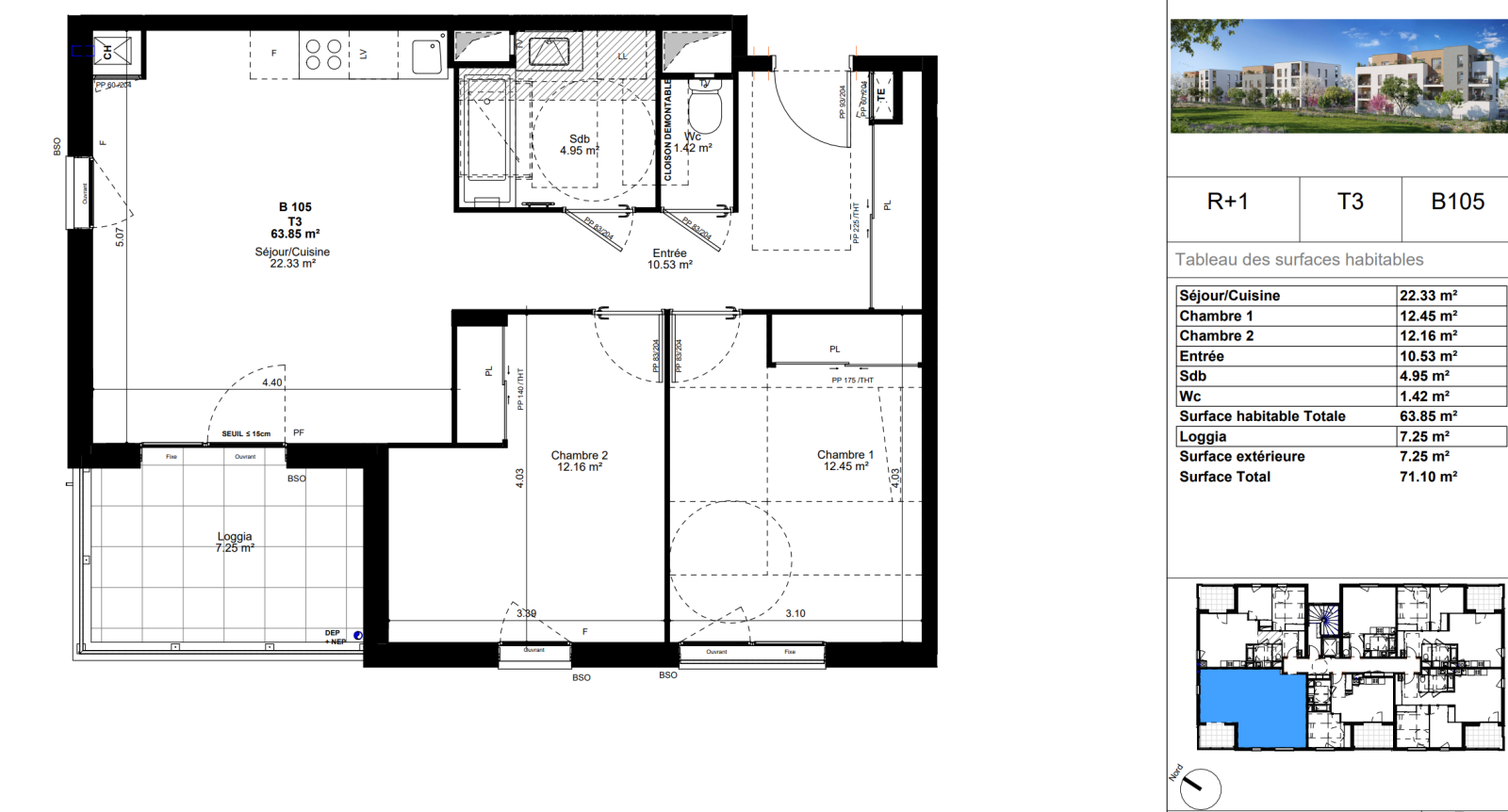
Albertville (73200)
ALBERTVILLE T3 NEUF
63,02 m²
-
279 000 €