
A propos de ce bien
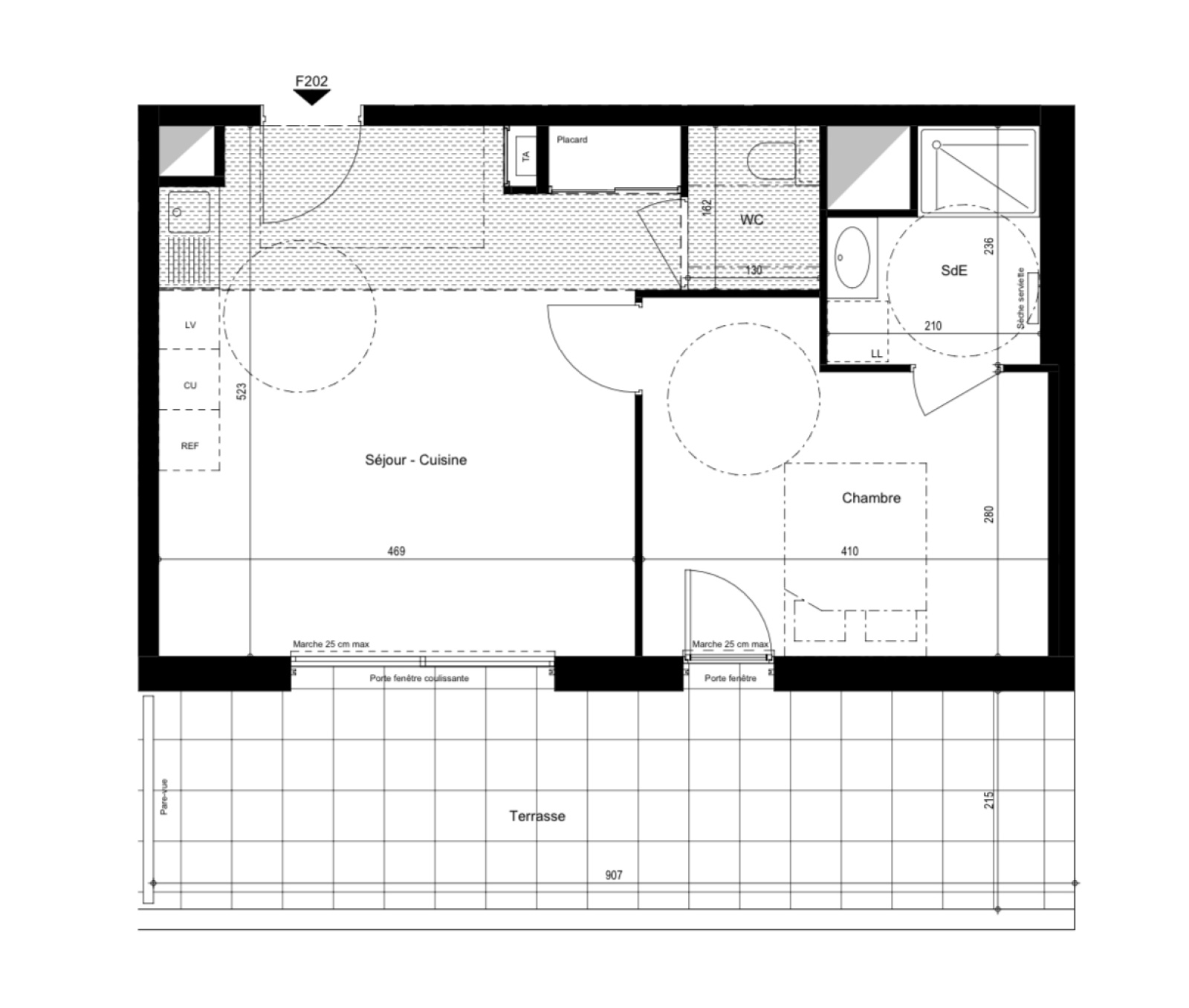
Dans la future résidence du Domaine de La Croix sur la commune de St Alban Leysse, votre agence Easy Vente Immo vous propose un appartement T2 de 43,34m2 au RDC avec un séjour/cuisine de 24m2, une chambre de 12m2, un wc, une salle d'eau et une terrasse d'environ 20m2. En annexe, vous disposerez d'une cave et d'un garage.
Il y a dans cette résidence, plusieurs biens disponibles allant du T2 au T5. Possibilité d'acquérir les appartements sans les garages.
Pour toutes informations supplémentaires concernant ce bien ou ce domaine, contactez Mme BERNARD Marielou au 06 17 76 20 96 ou par mail à l'adresse m.bernard@easyventeimmo.fr.
Descriptif du bien
-
Commerces et santé
-
Loisirs
-
Ecoles
-
Transports
-
Pratique
La base légale du traitement repose sur l’intérêt légitime de l'Agence / du Réseau.
Elles sont conservées jusqu'à demande de suppression et sont destinées à l'Agence / au Réseau.
Conformément à la loi « informatique et libertés », vous pouvez exercer votre droit d'accès aux données vous concernant et les faire rectifier en contactant l'Agence / le Réseau.
Si vous estimez, après avoir contacté l'Agence / le Réseau, que vos droits « Informatique et Libertés » ne sont pas respectés, vous pouvez adresser une réclamation à la CNIL.
Nous vous informons de l’existence de la liste d'opposition au démarchage téléphonique « Bloctel », sur laquelle vous pouvez vous inscrire ici : https://www.bloctel.gouv.fr
Dans le cadre de la protection des Données personnelles, nous vous invitons à ne pas inscrire de Données sensibles dans le champ de saisie libre
Ce site est protégé par reCAPTCHA, les Politiques de Confidentialité et les Conditions d'Utilisation de Google s'appliquent.
Détails des diagnostics énergtiques
